Hillcroft

3218 Hillcroft, Houston, TX 77036

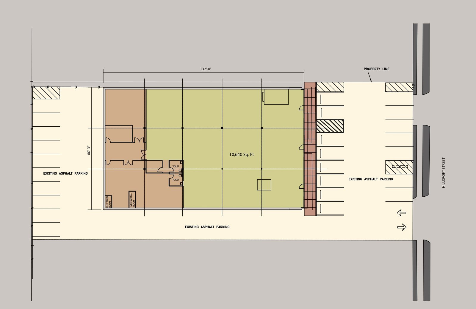
Mody Plaza Hillcroft is a Multi-Tenant Retail Center. It is a 10,600 sq ft Center which has a steel structure with a stucco façade.

Hillcroft Avenue is an arterial road in western Houston, Texas, United States. Hillcroft has a wide boulevard, and many single family homes surround Hillcroft and is surrounded by strip centers and multifamily developments.

With 4,336,853 people, Harris County is the 1st most populated county in the state of Texas out of 254 counties ​The largest Harris County racial/ethnic groups are Hispanic (41.6%) followed by White (31.7%) and Black (18.4%). In 2013, the median household income of Harris County residents was $52,489.

Throughout 2010, Hillcroft Avenue was fully reconstructed between Bissonnet Street and the Southwest Freeway (US 59). This section was widened from six lanes to eight lane. The road’s exceptionally wide right-of-way (140 feet/42.7 meters) allowed for this widening while maintaining a landscaped median.

  • Status : Ready to move
  • Type : Apartment
  • Area : 10,600 Sq. Ft.
  • Location : Houston, TX
  • Year Built : Project Year Built

Space Availability

Space Size Rent Type

Amenities

Surveillance

Surveillance

24x7 CCTV coverage for security and a potent deterrent against trespassing, theft and vandalism.

Landscaping

Landscaping

Clean and manicured property with routine lawn maintenance, ornamental care, and scheduled clean-ups.

Parking

Parking

Convenient car parking facility available with surveillance security.

Trash Cleaning

Trash Cleaning

Regular trash disposal and waste management are carried out to keep property clean with hygienic environment.

Tenant Signage

Tenant Signage

Create a positive and impactful impression on your visitors and oncoming traffic with thoughtfully placed signage sports.

Consultation

Consultation

In-depth right advice and guidance offered to your commercial space needs with honest opinions.

Inquiry

Thank you for getting in touch!
We appreciate you contacting us. One of our colleagues will get back in touch with you soon!Have a great day!